来源:倍可亲(backchina.com)






遭瑞典医生马丁·特伦尼博尔格(Martin Trenneborg)迷奸并绑架的女子日前打破沉默,曝光了其被关入地牢沦为性奴的6天恐怖经历。
据英国《每日邮报》1月21日报道,该女子30岁左右,她告诉警方,马丁谎称自己是住在伦敦的美国股票经纪人。两人第二次约会时,马丁在草莓中下药迷晕她后实施强奸。随后将其带到近500公里外的农场。
受害女子醒来时发现自己已经在地牢里。 胳膊上扎着两根针,马丁就坐在床边的椅子上。
受害者称:“我感觉就好像做了个很长的噩梦,他告诉我,地牢的门与银行金库用的一样,墙体是厚厚的混凝土,没人能听到我的叫声,我也不可能出得去。”
马丁还威胁受害女子说,如果她试图袭击就把她变成发臭的尸体。
受害者称,马丁明确说明了自己的意图,他要将受害者锁起来,每天发生两三次性关系,给他打扫卫生、做饭等等。
受害者表示,马丁还说计划再找一名女性。他的目标可能是某个名人,计划扮成管钳工,撬开门,然后将其绑走。
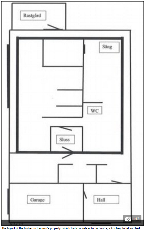
马丁是自由医生,2010年开始建造60平方米的地堡,目的可能是要在这里长期关押被绑架的女性,这里设施齐全,包括卧室、卫生间以及厨房等。